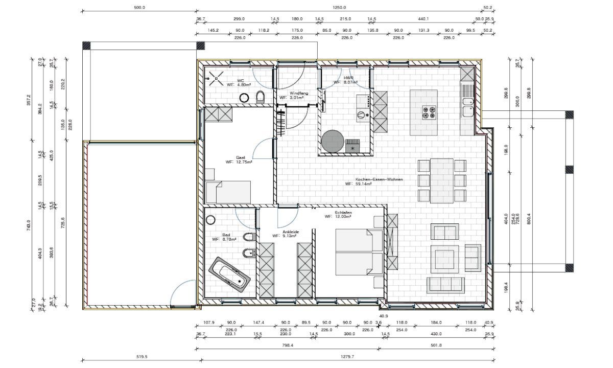
Vorentwurf durch uns
Wir erstellen für Sie einen Vorentwurf zu Ihrem Haus mit 3D-Ansichten, Grundrissen und Schnitt, den wir dann mit Ihnen abstimmen. Dieser Vorentwurf ist individuell auf Ihre persönlichen Bedürfnisse und Ihr Grundstück zugeschnitten. Hierbei profitieren Sie natürlich von unserer langjährige Erfahrung im Holzhausbau. Ihre Änderungswünsche werden besprochen und der Entwurf wird entsprechend angepasst.
Der finale Vorentwurf bildet dann die Grundlage unseres Angebotes. Änderungswünsche können natürlich auch später noch berücksichtigt werden.
Der finale Vorentwurf bildet dann die Grundlage unseres Angebotes. Änderungswünsche können natürlich auch später noch berücksichtigt werden.





